Listed by Re/Max Sunshine

Sold by Sue Plein, Kingfisher Real Estate
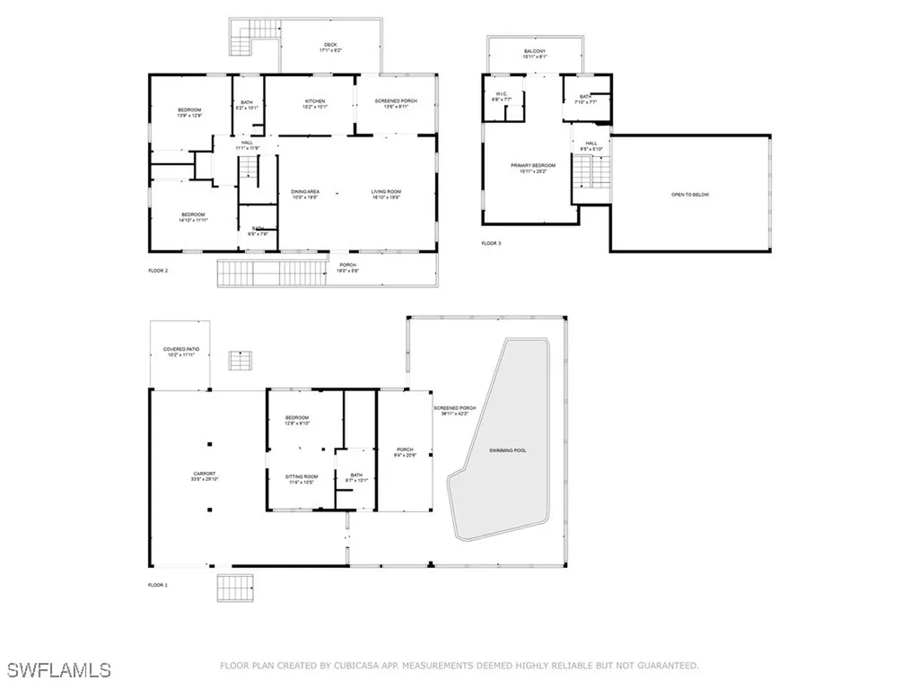
MOTIVATED SELLER HAS IMPROVED THE PRICE OF PARADISE! This SUCCESSFUL RENTAL INVESTMENT can produce revenue or, can be YOUR OWN PRIVATE OASIS! Schedule your private showing of "BIRD OF PARADISE!" Beautiful Beach vibes throughout welcome you into this bright and airy Chalet style beach home. Enjoy your new Baer's Living Room Furniture offering a peaceful Island feel. It also includes a re-upholstered, Tommy Bahama Dining room set that seats 8 comfortably. This is an entertainer's dream. As a very successful vacation Rental, it also provides a great investment opportunity. This Captiva, turnkey home, is spacious with vaulted ceilings and plenty of outdoor living space. 4 BR/4BA offers privacy for guests. 3 of the Bedrooms have a private bathroom including the lower bedroom which an efficiency suite. It sleeps 10 with plenty of room for both indoor and outdoor entertaining. The heated pool, pool table,ping pong table and outside grill offer guests a break from the beach (As if you'd want a break from the beach). Only 2 houses from beach access. This is an amazing home on magnificent Captiva Island. Please watch the videos for a full virtual experience. Sellers have made several improvements including, a new roof over the grilling area, kitchen backsplash, kitchen lanai has BRAND NEW LINOLEUM TILE, New guest-room kitchenette, new septic system and irrigation system. New mini split A/C is installed in 4th bedroom on first floor. Exterior deck was recently redone with a solid stain. Seeing is believing! This home could be yours. Please enjoy the videos and schedule a private showing to see for yourself. NO HURRICANE DAMAGE!

Listing Tools

Property Details of 11525 Chapin Lane, GORES A M SUBD

Property Details

Interior Features

Exterior Features

Utilities and Appliances

Community

Other Details

Map Location

Driving Directions

Based on information submitted to Gulf Coast as of November 10, 2025 . All data is obtained from various sources and has not been, and will not be, verified by broker or Gulf Coast.  All information should be independently reviewed and verified for accuracy. Properties may or may not be listed by the office/agent presenting the information. NOTICE: Many homes contain recording devices, and buyers should be aware they may be recorded during a showing.

Hi there! How can we help you?

Contact us using the form below or give us a call.

Send Us A Message:

I agree to receive marketing and customer service calls and text messages from Phaidra McDermott. To opt out, you can reply 'stop' at any time or click the unsubscribe link in the emails. Consent is not a condition of purchase. Msg/data rates may apply. Msg frequency varies. Privacy Policy.

Do not fill in this field:

This site is protected by reCAPTCHA and the Google Privacy Policy and Terms of Service apply.

Hi there! How can we help you?

Contact us using the form below or give us a call.

Send Us A Message:

Do not fill in this field:

This site is protected by reCAPTCHA and the Google Privacy Policy and Terms of Service apply.

Hi there! How can we help you?

Contact us using the form below or give us a call.

Send Us A Message:

Do not fill in this field:

This site is protected by reCAPTCHA and the Google Privacy Policy and Terms of Service apply.

Do not fill in this field:

This site is protected by reCAPTCHA and the Google Privacy Policy and Terms of Service apply.

Do not fill in this field:

This site is protected by reCAPTCHA and the Google Privacy Policy and Terms of Service apply.

Do not fill in this field:

This site is protected by reCAPTCHA and the Google Privacy Policy and Terms of Service apply.

$

Do not fill in this field:

This site is protected by reCAPTCHA and the Google Privacy Policy and Terms of Service apply.